家づくりを検討する際、誰もが気になるのが品質と価格のバランスですよね。「こんなに素敵でさらに高品質ってホント?」「なぜこの価格が実現できるの?」など、家づくりには様々な不安や疑問がでてきます。
「マイレアホームStory」では、タカノホームグループが手がけるセミオーダー住宅ブランド「マイレアホーム」の家づくりや、理想のマイホームを手に入れた家族の物語を紹介します。
今回は、富山市にあるモデルハウスを実際に訪問。ローコストでありながら高クオリティを誇る、その秘密をレポートします。さらに素材を生み出すプレカット工場も徹底取材。スタイリッシュなデザインの裏側にある、確かな技術についてもご紹介します。
いざ、モデルハウス見学へ!

\今回お邪魔したモデルルーム🏠/
子育て世代にぴったり!シンプル&モダンな2階建て!
場所:あいの風とやま鉄道・新富山口駅から徒歩1分
面積:【1階床面積】62.93㎡(19.03坪) 【2階床面積】43.06㎡(13.02坪) 【延床面積】105.99㎡(32.06坪)
構造:木造2階建て
今回お邪魔したのは、子育て世代にぴったりの32坪4LDK。
マイレアホームの魅力の一つは、タカノホームグループのこれまでの建築実績から、特にお客様満足度の高かったデザインが採用されていること。
今回訪れたモデルハウスは、流行のグレイッシュカラーで統一されたシンプル&モダンなデザイン。機能性を兼ね備えた直線的なフォルムが特徴で、周辺環境にも自然に馴染んでいます。
敷地内には車2台分の駐車スペース、芝生のお庭スペースがあります。

広々とした玄関アプローチにも注目!雨や強い日差しを防ぐだけでなく、家族が同時に出入りする際や、訪問者の待機スペースとしても十分な広さがあります。ベビーカーや宅配ボックスなどを置くにも余裕があり、近年このスペースを広めにしたいという人が多いのだそう。
玄関には正面からはもちろん、駐車スペースからも直接入れるので、荷物の運搬も楽々です。このようなちょっとした動線も、日々の暮らしに便利さをプラスしてくれます。

玄関を入ると、両サイドにはたっぷりとした収納スペースが。正面に見えるアクセントウォールには、調湿、脱臭効果などをもつ特殊加工が施された「エコカラットプラス」を採用。洗練された上品な玄関フロアに、期待感が高まります。
マイレアホームの嬉しいポイント①失敗しない間取り!
タカノホームの建築実績から、お客様満足度の高い間取りを厳選してプラン化
さて、この家で特に注目したい魅力が、室内の移動がしやすい回遊動線を採用した間取りです。


玄関から、LDK(リビング・ダイニング・キッチン)とランドリールームなどの水回り、2つのルートにアクセスでき、室内をぐるりとスムーズに移動できるのです。
回遊動線には、家事効率アップや、移動のストレスの軽減、身体機能が低下する老後も長く快適に暮らせるなど、様々なメリットがあります。マイレアホームの間取りは、これまで多くのお客様に好評だったものを標準仕様としているため、安心してお任せできるのが魅力ですね。

家族がゆったりくつろげる、明るいリビングスペース

まず玄関の右側に位置するのが、約16帖のリビングスペース。一体感と開放感が魅力のI型LDKは、視線が奥まで抜けるため、実際よりも広々と感じられます。
大きな窓からは十分な採光があり、明るく心地よい印象です。テレビボード側の壁は流行色のグレージュでコーディネートされ、落ち着いた空間が演出されています。

これまで多くのお客様から「狭くても、できれば畳の間が欲しい」という声があったことから、4.5畳の和室も設けました。
扉で区切ることもできるので、来客時の客用寝室としても使えます。床の間スペースもあり、多目的に使える汎用性の高い空間となっています。




ぐるりと回遊し、玄関前へと戻ってきました。
2階に上がる前に、階段下の収納もチェック。家族の成長とともに、どうしても増えてしまう荷物も大容量で収納できるので安心です。床下収納もこの場所にあるため、普段使わないものや長期保存できる食材などを人目を気にせずしまっておくことができます。
階段には手すりも完備。勢いよく駆け上がる子供にも、高齢の家族にとっても安心です。
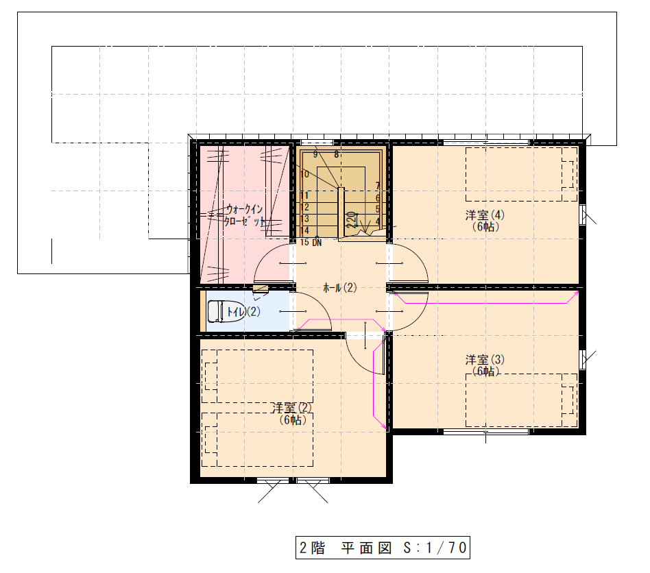
プライベートエリアの2階へ

タカノホームグループの家づくりには、自然な木の色や香りが楽しめる無垢材へのこだわりがあります。高い意匠性を持つ無垢材は、調湿性にも優れ、長く使うほど味わいが増し、経年変化を楽しめるという特徴があります。
このモデルハウスでは、家族一人ひとりの休息空間である2階の床に無垢材を使うことで、リラックス効果を高めています。

2階のプライベート居室にも、細やかなポイントが。プライベート空間では往々にして開けっ放しになりがちなクローゼットの扉を最初から取り払い、オープン収納に。窓の位置を高くすることで、外からの視線を気にせず、勉強机やベッドの配置も自由に決められます。
数多くの建築実績に裏打ちされた、隅々まで配慮された設計ですね。
気になる購入価格は?

ここで『素敵なのは充分伝わった!この家の購入金額が知りたいわ!』と、読者の心の声が聞こえてきたのでお伝えします。
▼新富山口モデルハウスと同様の広さ・間取りの場合
32坪 2階建てプラン 2,505万円(税込)
全額ローンを組む場合:月々5万円台のお支払い!
※40年ローン(ボーナスなし)、金利0.35%で計算した場合。
※土地、地盤改良費、外工費等は含まず。
「この間取りとデザインでこの価格!?」と驚かれたことでしょう。
マイレアホームでは、タカノホームグループでこれまで8,000棟以上を施工してきたからこそ、仕入れのコストダウンが実現でき、標準仕様が充実しているからこそオプション工事を最小限にできるなど、たゆまぬ企業努力の結果、このクオリティでの低価格が叶っているのです。

✅これまでの実績から特に満足度の高かった仕様・間取り・デザインをパターン化することで、仕入れコストを最小限に抑えています。
✅厳選されたプランから選択することで、打ち合わせ期間を短縮し、設計コストを削減しています。
✅押し売り型の訪問営業を行わないため、営業コストを抑えることができます。
マイレアホームの嬉しいポイント②150万円分自由に選べる仕様!
「プレミアムセレクション」により、通常ならオプション扱いとなる仕様も予算内で選べます

さて、空間にアクセントを加える、デザイン性の高い天井。こんなおしゃれな天井って、きっと高いんだろうな…と思いませんか?
ここがマイレアホームのすごいところ。
プランに組み込まれた独自のカスタマイズシステム「プレミアムセレクション」により、通常ならオプション扱いとなる仕様を、150万円の範囲内で自由に選択することができるのです。住む人の好みやライフスタイルに合わせて、インテリアや設備をカスタマイズでき、この天井もその一例です。予算を気にせず理想の住まいづくりができる、マイレアホームならではのサービスですね。
内見してみると、上質なデザインと間取りへのこだわりが随所に感じられました。それなのに、この低価格が実現できる驚き。一生に一度の大きな買い物だからこそ、残るは土台となる素材の品質が気になりますよね。
その秘密を探るべく、タカノグループの独自工場であるプレカット工場を訪れてみましょう。
自社工場で仕入れから品質管理まで徹底して行われる安心感。

プレカット工場とは?🌳
住宅に使われる木材をあらかじめカットし、精密に加工するための施設。
マイレアホームを展開するタカノグループは、北陸最大級のプレカット工場を有しています。
かつてタカノグループは品質のばらつきを無くすため、業界に先駆けて最大誤差0.5mm以下という高精度のプレカット技術を導入しました。基準を満たした高強度の木材を採用し、乾燥から製材、プレカット加工まで一貫生産し、常に安定した品質の木材を安定供給しています。
グループ全体で高品質な木材を大量に仕入れ、自社で加工することで、品質を保ったままコストダウンを実現しているのです。

まずは木材の保管場所であるストックヤードを見学。全ての木材は屋根の下で保管され、雨などの影響を受けないようビニールで丁寧に包まれています。
さらに木材同士が密着して蒸れるのを防ぐため、枕を噛ませているのだそう。徹底した管理体制が伺えます。


「タカノグループでは、一般的な住宅メーカーよりも多く木材を使用しています。骨組みを強化することで、住宅全体を頑丈なつくりに仕上げているのです」と、工場を一つひとつ案内してくれたのはプレカット事業部長の高橋さん。

続いて機械加工現場へ。家の基礎となる構造材は、一軒ごとに精密に加工されています。効率化を追求する大量生産とは異なり、一棟一棟に真摯に取り組む姿勢が印象的です。
「加工は機械で行われますが、要所要所で人間の目で見ることが大事。お客様が住むことを考えながら妥協せずに取り組むことが大事だと考えています」と高橋さんは語ります。こうした木材の厳しい選定基準と徹底された品質管理、丁寧な加工技術が「マイレアホーム」の“安心”を支えているのですね。
家づくりは一生に一度の買い物。だからこそデザイン性能はもちろん、その土台となる、見えない素材や技術もしっかり確かめることが重要だと感じました。
マイレアホームとは

マイレアホームは、北陸エリアで8,000棟以上の建築実績を持つタカノホームグループが手がける、新しい住宅ブランド。6つの暮らしのスタイルと、5つのデザインから選ぶことができるセミオーダータイプの住宅です。

タカノホーム品質そのままで、価格を抑えて家づくりをすることができます。
タカノホーム品質とは?

✅全棟ZEH仕様
マイレアホームの住宅は、2030年から新築住宅で義務化される予定の水準「断熱等性能 等級5」を満たした住まいです。高断熱・省エネ性能により、快適さに加え光熱費を削減することができます。
✅耐震等級3
建築基準法で定められた最高等級。地震・災害から大切な家族を守ります。
✅長期優良住宅
長く快適に住み続けられることを国が認めた「長期優良住宅」です。資産価値を維持しやすく、税制優遇などのメリットも受けることができます。
来場予約キャンペーン実施中!
現在12/1(月)~12/31(水)の期間限定で実際にご来場いただいた新規のお客様へ「Amazonギフト最大3,000円分」をプレゼントしています。※特典には条件があります。詳細は、マイレアホームのホームページをご確認ください。

今回取材したプレカット工場の様子はこちら
マイレアホームの施主様インタビュー記事はこちら👇